Startseite » Immobilien » Wohnen und Arbeiten vereint: Haus mit Werkhalle, Garten und Waldzugang in Bad Salzuflen-Holzhausen
Wohnen und Arbeiten vereint: Haus mit Werkhalle, Garten und Waldzugang in Bad Salzuflen-Holzhausen
32107 Bad Salzuflen, Haus zum Kauf
Video
Kontaktdaten
-
NameHerr René Pierre Lüke
-
AdresseKurfürstenstr. 2
32052 Herford -
E-Mail Direkt
-
Tel. Durchwahl
- zum Kontaktformular
Objektdaten
-
Objekt ID2025-EFHmGWF-MPS28
-
ObjekttypHaus
-
Adresse32107 Bad Salzuflen
-
Etagen im Haus1
-
Wohnfläche ca.160 m²
-
Nutzfläche ca.204 m²
-
Grundstück ca.1.634 m²
-
Zimmer8
-
Schlafzimmer3
-
Badezimmer3
-
Wesentlicher EnergieträgerGas
-
Baujahr1984
-
Zustandgepflegt
-
Stellplätze gesamt5
-
Verfügbar abnach Absprache
-
Käuferprovision4,76% des Kaufpreises inkl. Mehrwertsteuer
-
Kaufpreis440.000 EUR
Ausstattung / Merkmale
- ✓ Außenstellplatz
Energieausweis
-
EnergieausweistypBedarfsausweis
-
Ausstellungsdatumnach dem 1.5.2014
-
Baujahr lt. Energieausweis1984
-
PrimärenergieträgerGas
-
Endenergiebedarf147,60 kWh/(m²·a)
-
EnergieeffizienzklasseE
Objektbeschreibung
Beschreibung
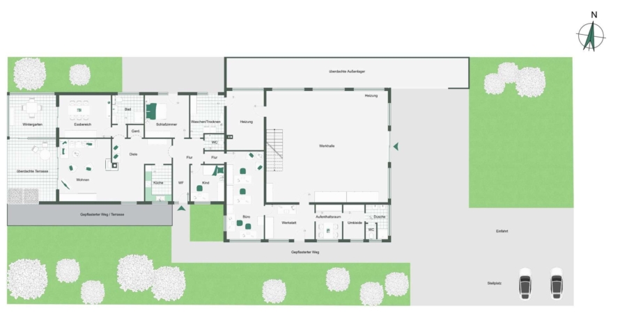
Dieses vielseitige Immobilienangebot vereint Wohnen, Arbeiten und Natur auf ideale Weise. Auf einem großzügigen Grundstück von ca. 1.634 m² in ruhiger Lage von Bad Salzuflen-Holzhausen bietet es ein Wohnhaus mit ca. 160 m² Wohnfläche sowie eine funktional ausgestattete Gewerbehalle mit ca. 204 m² Nutzfläche.
Besonders attraktiv ist die klare Trennung – und gleichzeitige Verbindung – von privatem Wohnen und gewerblicher Nutzung. Der Wohnbereich wurde laufend gepflegt und modernisiert, die Gewerbehalle eignet sich ideal für Handwerksbetriebe, Selbstständige, Schausteller oder Käufer, die Wohnen und Arbeiten an einem Ort vereinen möchten.
Ein direkter Zugang zur Natur mit Wald- und Bachnähe schafft eine besondere Lebensqualität, die in dieser Kombination äußerst selten ist.
Ausstattung
Das 1984 in solider Massivbauweise errichtete Wohnhaus besticht durch eine großzügige Raumstruktur und zahlreiche Modernisierungen. Die Heizungsanlage wurde 2011 erneuert und sorgt in Kombination aus Fußbodenheizung und Wandheizkörpern für ein angenehmes Raumklima. Die Warmwasserbereitung erfolgt energieeffizient über eine Wärmepumpe. Zwei stilvolle, helle Bäder wurden 2022 modernisiert. Für zusätzliche Gemütlichkeit sorgt ein Kaminofen im Wohnbereich.
Im selben Zuge wurden 2022 sämtliche Lichtschalter und Steckdosen im Wohnhaus erneuert, ebenso teilweise Außensteckdosen. Die elektrischen Leitungen wurden durch einen Fachbetrieb geprüft und sind in einwandfreiem Zustand. Die Fenster (zweifach verglast) stammen aus dem Baujahr, ebenso wie der Großteil der Leitungen. Das Dach ist vollständig isoliert, zusätzlich wurde die oberste Geschossdecke gedämmt. Elektrische Jalousien im gesamten Wohnbereich erhöhen den Komfort. Haustüren und Zimmertüren wurden 2023 erneuert.
Ein lichtdurchfluteter Wintergarten sowie ein direkter Ausgang vom Wohnbereich führen auf die großzügige Westterrasse mit Blick in den gepflegten Garten. Das ca. 1.634 m² große Grundstück bietet viel Raum zur Entfaltung. Ein früher genutztes Outdoor-Schwimmbecken ist aktuell stillgelegt und verschüttet, kann aber bei Bedarf wieder reaktiviert werden.
Die ca. 204 m² große Gewerbeeinheit ist ebenfalls aus dem Baujahr 1984, gedämmt, beheizbar und funktional ausgestattet: Büroräume, Umkleiden, Personalbereich, Dusche und WC bieten optimale Bedingungen. Ein modernes LED-Lichtband sorgt für hervorragende Ausleuchtung, eine Abluftsteuerung für ein angenehmes Raumklima. Ein überdachtes Außenlager sowie eine Lagerfläche im Obergeschoss erweitern die Nutzungsmöglichkeiten zusätzlich.
Mehrere Stellplätze, ein Carport und eine charmante Holzhütte runden das Ensemble stimmig ab.
Sonstiges
Diese Immobilie ist besonders interessant für Handwerksbetriebe, Selbstständige, Schausteller oder alle, die eine einzigartige Verbindung aus Arbeiten, Wohnen und Natur suchen. Die durchdachte Struktur bietet zahlreiche Nutzungsmöglichkeiten – sei es als Unternehmenssitz mit privatem Wohnanteil oder als Rückzugsort mit Werkstatt- oder Ateliercharakter.
Das große Grundstück, die funktional aufgeteilte Gewerbefläche, die vielen Außenstellplätze und der charmante Wohnbereich mit Garten machen dieses Angebot zu einer seltenen Gelegenheit.
Lage
Die Immobilie befindet sich im Gewerbegebiet von Bad Salzuflen-Holzhausen (PLZ 32107). Trotz gewerblicher Umgebung profitiert das Grundstück von seiner ruhigen Randlage mit direktem Zugang zur Natur: Ein angrenzender Wald mit Bachlauf schafft eine erholsame Atmosphäre und ist vom Garten aus begehbar.
Die Anbindung ist ideal – Einkaufsmöglichkeiten, Schulen und der öffentliche Nahverkehr sind in wenigen Minuten erreichbar. Die Nähe zur A2 und B239 bietet zudem eine hervorragende Erreichbarkeit für Kunden, Lieferanten oder Geschäftspartner.
Die Umgebung ist geprägt von Handwerks- und Dienstleistungsbetrieben – eine solide Nachbarschaft für Unternehmer mit Vision. Die Kombination aus gewerblich genutztem Umfeld und naturnahem Rückzugsort ist eine Seltenheit in dieser Lage.
Wenn Sie die Immobilien-Karte anzeigen, übertragen Sie Daten an Google Maps (Datenschutzerklärung).
Die dargestellte Position der Immobilie ist nur eine ungefähre Angabe.








































