Startseite » Immobilien » Fußgängerzonen-Rarität mit Dachterrasse & Charme – Ihre Chance in Herford
Fußgängerzonen-Rarität mit Dachterrasse & Charme – Ihre Chance in Herford
32052 Herford, Haus zum Kauf
Video
Kontaktdaten
-
NameHerr Matthias Uhlen
-
AdresseKurfürstenstr. 2
32052 Herford -
E-Mail Direkt
-
Tel. Durchwahl
-
Mobil
- zum Kontaktformular
Objektdaten
-
Objekt ID2025-WuG-BS20
-
ObjekttypHaus
-
Adresse32052 Herford
-
Etagen im Haus3
-
Wohnfläche ca.487 m²
-
Grundstück ca.329 m²
-
Zimmer10
-
Schlafzimmer4
-
Badezimmer3
-
HeizungsartZentralheizung
-
Wesentlicher EnergieträgerGas
-
Baujahr1895
-
Zustandsanierungsbedürftig
-
Verfügbar absofort
-
Käuferprovision3,57% inkl. MwSt.
-
Kaufpreis490.000 EUR
Ausstattung / Merkmale
- ✓ Keller
Energieausweis
-
EnergieausweistypBedarfsausweis
-
Ausstellungsdatumnach dem 1.5.2014
-
Baujahr lt. Energieausweis1895
-
PrimärenergieträgerGas
Objektbeschreibung
Beschreibung
Seit über 100 Jahren in Familienbesitz, steht dieses Wohn- und Geschäftshaus für Substanz, Charakter und Entwicklung. Der vordere Teil stammt aus dem Jahr 1895, der hintere wurde zwischen 1945 und 1955 neu bzw. teilweise wieder aufgebaut. Über Generationen hinweg wurde hier gelebt, gearbeitet und geprägt – nun wartet dieses Gebäude auf neue Eigentümer, die mit Ideen, Gespür und Weitblick seine nächste Phase gestalten möchten.
Mitten im Herzen von Herford – direkt in der hoch frequentierten Fußgängerzone – verbindet die Immobilie städtische Präsenz mit vielseitigem Potenzial. Auf rund 487 m² Gesamtfläche, bestehend aus ca. 358 m² beheizter Gewerbefläche und ca. 129 m² Wohnfläche, eröffnen sich unterschiedlichste Nutzungsmöglichkeiten. Die Gewerbeeinheit im Erd- und 1. Obergeschoss ist offen gestaltet, vollständig beheizt und mit einer separaten Lüftungsanlage ausgestattet. Eine breite Fensterfront zur Einkaufsstraße sorgt für maximale Sichtbarkeit. Im rückwärtigen Teil ergänzen Lager- und Nebenräume sowie eine große Dachterrasse das Ensemble – ideal als Aufenthaltsfläche, Repräsentationsbereich oder Ruhezone.
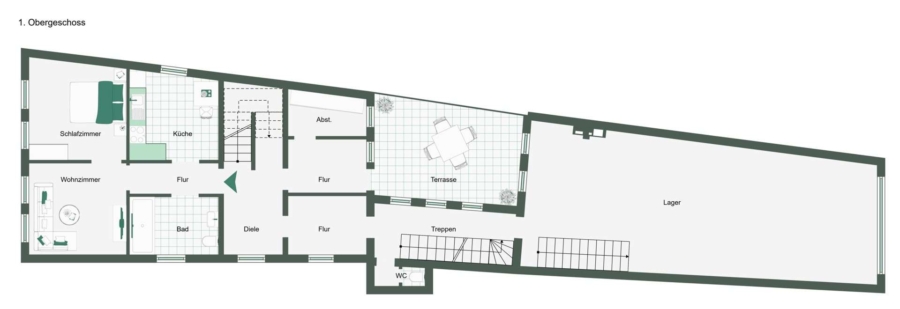
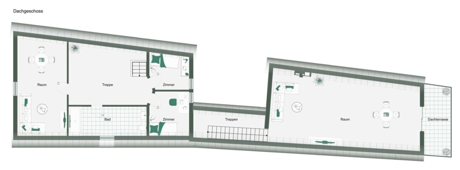
Die Wohneinheit mit separatem Eingang erstreckt sich über das Ober- und Dachgeschoss. Dielenböden, Kassettentüren, hohe Decken und großzügige Grundrisse schaffen ein Wohngefühl mit Altbau-Charme – ruhig, persönlich und mit Blick ins Grüne.
Dieses Haus ist mehr als nur Mauerwerk – es ist ein Stück lebendige Stadtgeschichte. Für Entwickler, Eigennutzer oder Unternehmer eröffnet sich hier eine seltene Gelegenheit, mitten im Zentrum etwas Besonderes zu schaffen.
Ausstattung
Die großzügige Gewerbeeinheit überzeugt mit einer durchdachten Raumstruktur und funktionalen Details, die vielseitige Nutzungen ermöglichen: Robuste Bodenbeläge, eine klare Flächenaufteilung, eine breite Schaufensterfront zur Fußgängerzone sowie separate Teeküche, Sanitärräume, Lagerflächen und ein Technikraum schaffen ideale Bedingungen für Dienstleister, Einzelhandel oder kreative Konzepte. Eine integrierte Lüftungsanlage sorgt für ein angenehmes Raumklima – auch bei hoher Kundenfrequenz oder intensiver Nutzung. Besonders hervorzuheben ist die weitläufige Dachterrasse, die zur Gewerbefläche gehört und als Rückzugsort, Präsentationsfläche oder Pausenbereich ein echtes Highlight darstellt.
Die Wohneinheit mit eigenem Eingang erstreckt sich über zwei Etagen und bietet vier gut nutzbare Zimmer. Altbaudetails wie originale Kassettentüren, Massivholzdielen und hohe Decken verleihen dem Wohnbereich seinen besonderen Charme. Die Bausubstanz ist solide, der Zustand teilweise original – ideal für alle, die Charakter schätzen und Raum für persönliche Gestaltungsideen suchen. Zweifach verglaste Fenster sowie eine zentrale Gastherme (Baujahr 2017) sorgen für zeitgemäßen Wohnkomfort. Das gesamte Gebäude ist vollständig unterkellert und bietet zusätzliche Abstell- und Technikflächen.
Dank der klaren Trennung von Wohn- und Gewerbebereich eignet sich das Objekt gleichermaßen für Eigennutzer, Investoren oder Konzepte mit gemischter Nutzung. Die Kombination aus Substanz, Flexibilität und Lage macht diese Immobilie zu einer seltenen Gelegenheit im Herforder Zentrum.
Sonstiges
Das Objekt ist ab sofort verfügbar und bietet sofortigen Handlungsspielraum für Eigennutzer, Investoren oder kreative Entwickler. Als klassisches Mischobjekt mit funktional klar getrennten Bereichen – Wohnen und Gewerbe – eröffnen sich vielfältige Nutzungsperspektiven: vom persönlichen Geschäftskonzept mit Wohnraum über eine flexible Vermietung bis hin zur langfristigen Aufteilung und Weiterentwicklung.
Auf Wunsch kann ein Verkehrswertgutachten erstellt werden, das nicht nur zusätzliche Planungssicherheit bietet, sondern unter bestimmten Voraussetzungen auch erhöhte Abschreibungsmöglichkeiten für Kapitalanleger eröffnet.
Auch eine spätere Teilung nach dem Wohnungseigentumsgesetz (WEG) oder eine wirtschaftliche Trennung mit separaten Mietverträgen ist grundsätzlich realisierbar – was zusätzliche Spielräume bei Finanzierung, Nutzung und Exit-Strategie schafft.
Lage
Die Bäckerstraße zählt zu den traditionsreichsten und lebendigsten Fußgängerzonen in Herford – ein Ort, an dem täglich Leben pulsiert. Die Sichtbarkeit und Erreichbarkeit dieser Adresse sind ideal für gewerbliche Konzepte mit Laufkundschaft, Markenerlebnis oder persönlichen Dienstleistungen. In unmittelbarer Umgebung befinden sich Cafés, Boutiquen, Banken, Apotheken, Ärzte, Schulen sowie der öffentliche Nahverkehr. Auch der Bahnhof ist fußläufig in wenigen Minuten erreichbar.
Gleichzeitig bietet das Gebäude durch seine Rückseitenlage mit Blick ins Grüne eine ruhige und wohltuende Rückzugsmöglichkeit – ein urbanes Spannungsfeld zwischen öffentlicher Präsenz und privater Entschleunigung. Wer hier wohnt oder arbeitet, ist mitten im Geschehen – und kann dennoch für sich bleiben.
Wenn Sie die Immobilien-Karte anzeigen, übertragen Sie Daten an Google Maps (Datenschutzerklärung).
Die dargestellte Position der Immobilie ist nur eine ungefähre Angabe.



















